Buckhead Basement Remodel: An Update on Craftsmanship in Action

Fireplace framework.

At Benjamin Andrew Construction, remodels aren’t just built — they’re thoughtfully crafted. That’s never more apparent than in our current Buckhead basement remodel, where each stage of the process is approached with both precision and vision.

Design Beyond the Desk

Before a single cabinet is ordered or tile is laid, there’s the design phase, and for Ben (the owner of BAC), that means more than signing off on plans. He’s in the details, pen in hand, sketching out the kitchenette and wet bar elevation design.

It’s a small but telling example of his involvement. This isn’t just about where cabinets go; it’s about the perfect proportion, the right alignment, and how each design decision impacts both function and flow. It’s the kind of thoughtful preparation that ensures the final space works seamlessly for the homeowner’s lifestyle.

On-Site, In the Details

On one of our recent site visits, the electrical and plumbing rough-ins were underway. This stage is critical; it’s where infrastructure meets design intent. Ben was there with a tape measure in hand, confirming outlet placement, double-checking plumbing locations, and mentally mapping the steps that follow.

Each measurement, each check-in, keeps the project aligned with the vision established at the start. This proactive approach prevents costly adjustments down the road and ensures that every trade on site is working toward the same precise outcome.

The Vision Behind the Remodel

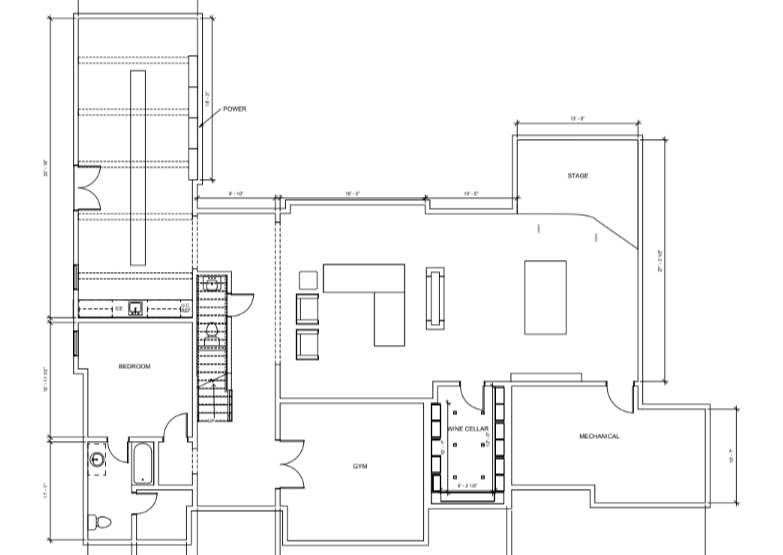
This isn’t just any basement upgrade. The space is being transformed into a multi-purpose retreat: a kitchenette and wet bar greet guests from the exterior entrance, paired with a shuffleboard area for casual gatherings.

The central lounge, anchored by a new fireplace, flows into a pool table zone and a raised stage designed for showcasing décor.

Beyond that, a steel glass-enclosed wine cellar adds character, while the gym—with a racing simulator—offers a modern, active touch. Every element has been carefully planned so the space works not just for today, but for years of living, entertaining, and enjoyment.


Behind the Build: The Art of Basement Remodels

Basements are often seen as bonus space — but in the right hands, they become so much more. They’re guest suites, entertainment hubs, home offices, or retreats. And creating those spaces requires more than construction know-how. It takes the art of anticipation — seeing not just the room in front of you, but the way it will be lived in years from now.

The best remodels balance technical expertise with creative problem-solving. They require coordination between dozens of moving parts — structural adjustments, lighting plans, ventilation needs, finishes — while keeping the homeowner’s vision as the North Star. This is where craftsmanship and project management overlap, forming the backbone of a truly successful remodel.

Ode to Project Management

Project management isn’t just scheduling and spreadsheets.
It’s the choreography of trades and timelines.
It’s knowing when to push forward and when to pause for perfection.
It’s the foresight to solve problems before they exist,
and the patience to measure twice when no one is watching.

In the remodeling world, project management is the silent craft; the one that leaves no fingerprints, yet shapes every surface. It’s the reason the tile lines up, the doors close cleanly, and the space feels exactly right.

And at Benjamin Andrew Construction, it’s not an afterthought.
It’s an art form.

Previous
Previous

Expanding Outdoor Living: A Deck Addition in Flowery Branch, GA

Next
Next

Buying vs. Building: What’s the Better Investment for Your Future Home?